STRS Shop Talk - July 30th, 2024

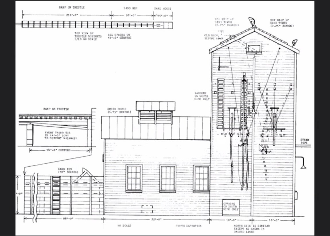
Folks gathered to talk trains and share projects and asks questions. In the July Shop Talk, we saw photos of layout projects and updates, planning for a new layout and scenery photos, photos from a layout open for tours, structure planning using old plans, a new layout in planning, had a walking tour of scenes on yet another layout, story of water leaks and layout damage, and updates to the Port scene at the SAMRA club. Various shares and layout updates discussed.